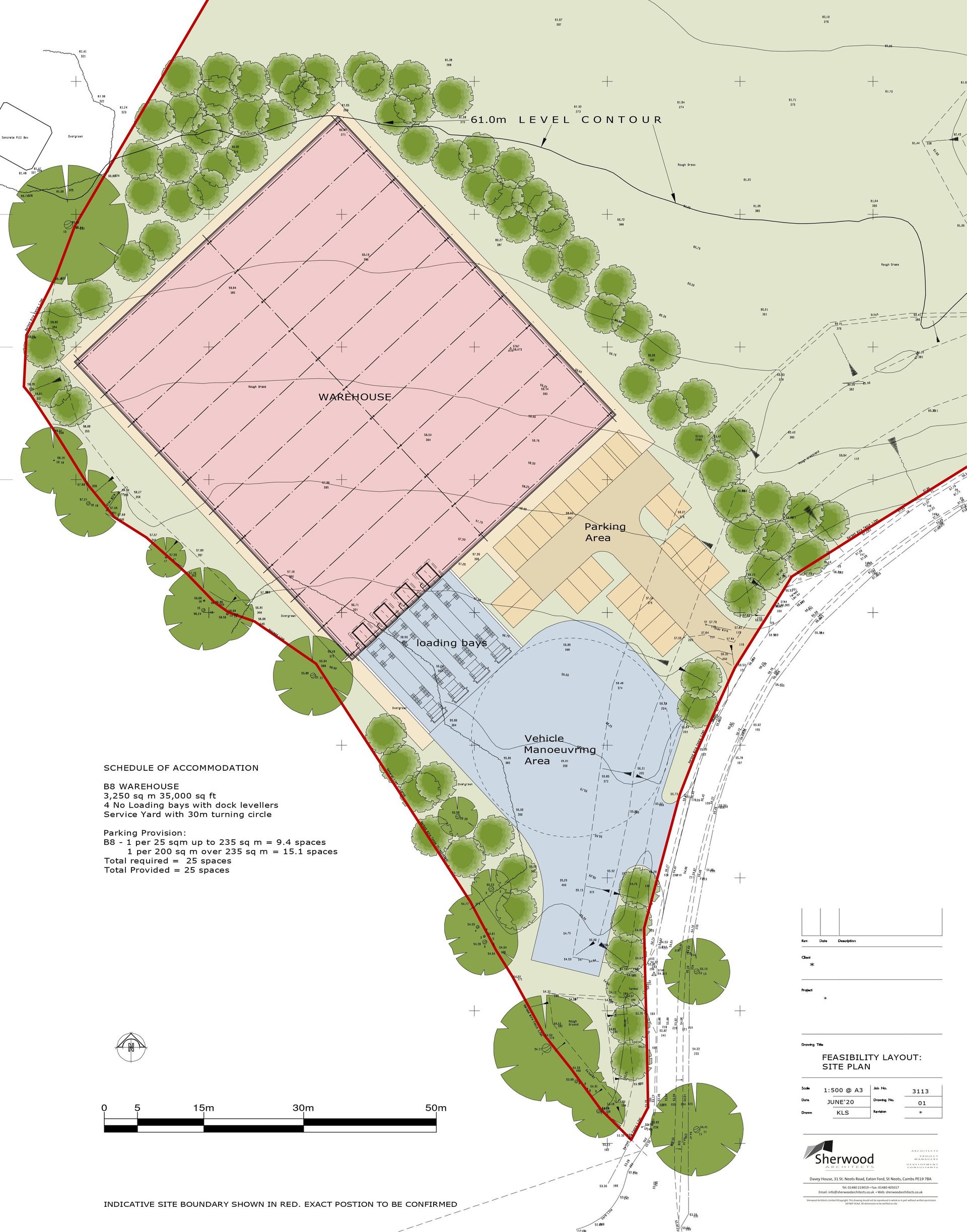
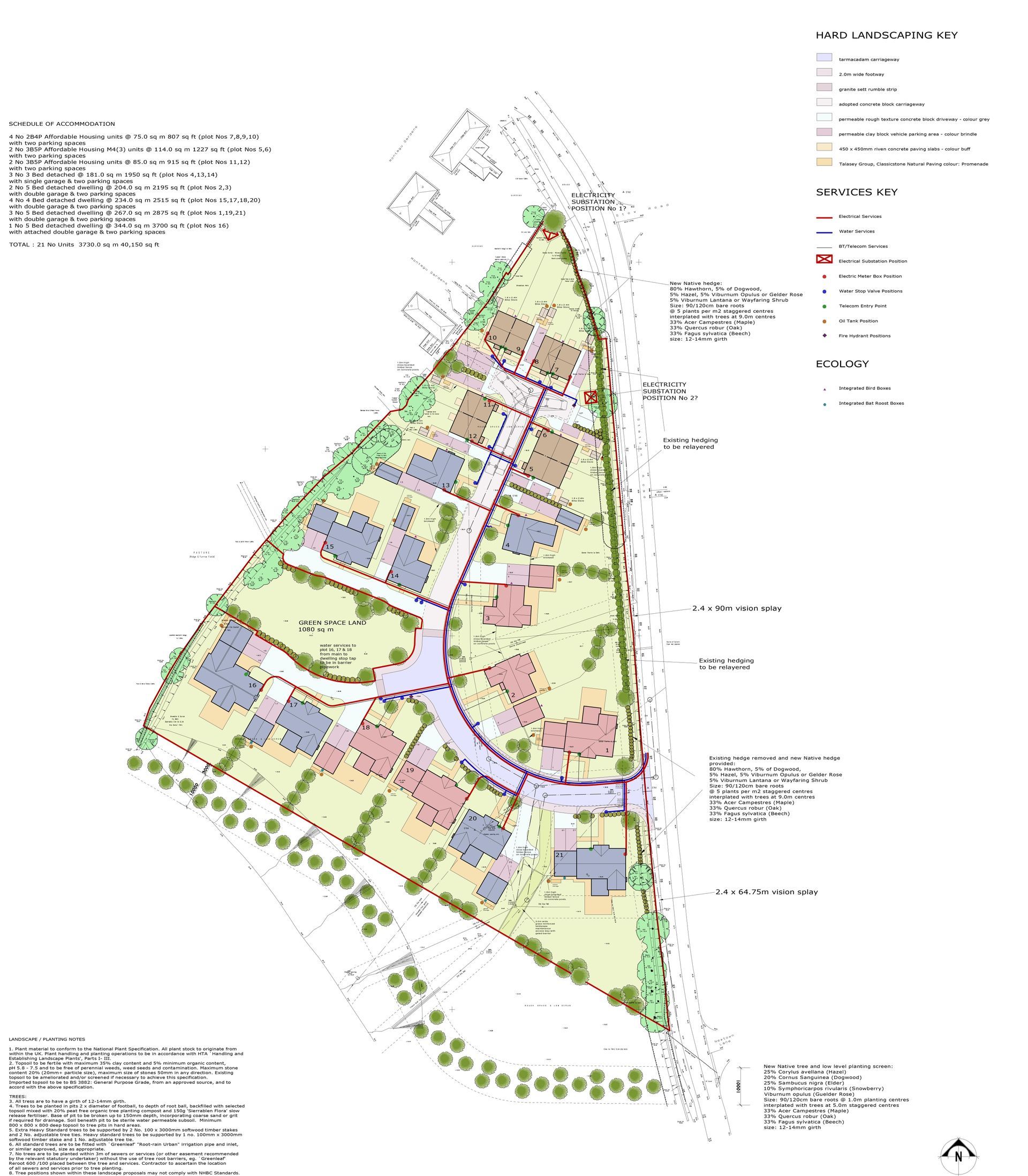
PLANNING, DESIGN, & DEVELOPMENT
Master planning is strategic comprehensive planning involved with the regeneration of neighbourhoods and urban centres, shaping towns and villages.
It concerns itself with the context of the development, ensures orderly redevelopment sometimes with many different building uses and types.
We have developed our architectural skills with other professionals to look at larger scale groups of buildings, streets and public spaces to make urban areas functional, attractive and sustainable places to live.
CONTACT US
If you are interested to find out more about us or simply want to speak to someone about your project needs, please give us a call or fill in our contact form and we'll get back to you soon.







